Взрывозащищенные корпуса из нержавеющей стали AISI316L 1 Ex d IIB+H2, 1 Ex d IIC T6… T3 Gb X (без ацетилена) серии УНВ-ДГ-Н (В) и УНВ-ДГ-Н (В) с окном

Производственно-инжиниринговая компания
Производственно-инжиниринговая компания

Корпуса серии УНВ-ДГ-Н(В) предназначены для промышленного применения в химически агрессивных взрывоопасных средах в помещениях и наружных установках (группа II) с содержанием газа и горючей пыли соответственно для взрывоопасных зон 1 – 2.

Взрывозащищенные корпуса из нержавеющей стали AISI316L серии УНВ-ДГ-Н(В) предназначены для промышленного применения в химически агрессивных взрывоопасных средах в помещениях и наружных установках (группа II) с содержанием газа и горючей пыли соответственно для взрывоопасных зон 1 – 2.
Взрывозащищенные корпуса из нержавеющей стали AISI316L 1 Ex d IIB+H2, 1 Ex d IIC T6…T3 Gb X (без ацетилена) серии УНВ-дг-Н(В) и УНВ-дг-Н(В) с окном
  • корпуса для клеммных зажимов и сборных шин;
  • корпуса для предохранителей, трансформаторов, регуляторов и другого электрооборудования с независимой функциональностью;
  • посты управления и системы мониторинга;
  • распределительные щиты для силовых систем, систем освещения и управления;
  • различные типы пускателей двигателей.
Основные функции данных корпусов
Содержание
–60/–40/–20 … 40/60° С
Соответствие стандартам таможенного союза:
Диапазон рабочих температур:
Степень защиты:
Сертификат соответствия:
Зоны применения:
IP66/67
№ТС RU C-RU.ГБ08.В.02616
Зона 1, Зона 2
ГОСТ Р МЭК 60079-11-2010
ГОСТ Р МЭК 60079-1-2011
ГОСТ Р МЭК 60079-31-2010
ГОСТ Р МЭК 60079-0-2011
1 Ex d [ib IIA/IIB/IIC] IIC «T6…T3» Gb Х (без ацетилена)
1 Ex d IIC T6…T3 Gb X (без ацетилена)
Вид взрывозащиты:
1 Ex d IIB+H2 «T6…T3» Gb Х
Ex tb IIIC «T85°C…T200°C» Db Х
1 Ex d [ib IIA/IIB/IIC] IIB+H2 «T6…T3» Gb Х
1 Ex d [ia IIA/IIB/IIC Ga] IIB+H2 «T6…T3» Gb Х
Ex tb [ia Da] IIIC «T85°C… T200°C» Db Х
Ex tb [ib] IIIC «T85°C…T200°C» Db Х
Корпуса выполняются из сварного железа или нержавеющей стали AISI 304 или AISI 316L. Крышка крепится с помощью набора винтов из нержавеющей стали AISI 304 A2 70 или на заказ AISI 316 A4, имеющих специальную головку под шестигранник, расположенных по периметру крышки — для безопасного прилегания, и на заказ с прокладкой по периметру для достижения степени защиты IP 67.

Модели со смотровым окном из закаленного стекла снабжены внутренним фланцем для крепления (только для окон размеров 300×300 мм и 450×300 мм). Снаружи и внутри корпуса установлены болты с рифлеными шайбами AISI304 для подключения контура заземления. Корпус снабжен внутренней монтажной пластиной из нержавеющей стали. Стандартное наружное покрытие эпоксидным лаком, стандартный цвет серый RAL 9006.
описание
Аксессуары и специальное исполнение
  • Антиконденсатное внутреннее покрытие, цвет стандартный Orange RAL 2004.
  • Специальное антиконденсатное внутреннее покрытие, цвет по спецификации заказчика.
  • Дренажный клапан.
  • Вентиляционный клапан.
  • Специальное оборудование из нержавеющей стали AISI 316 A4.
  • Нестандартная резьба.
Резьба и отверстия
  • Метрическая резьба ISO 965.
  • Трубная цилиндрическая резьба ISO 228.
  • Коническая резьба B1.20.1 NPT.
  • Другие типы резьб по запросу.
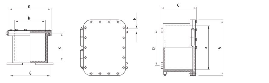
Габаритные размеры и вес корпусов серии УНВ-ДГ-Н(В)
Габаритные размеры и вес корпусов серии УНВ-ДГ-Н(В)
Сверление на короткой / длинной стороне корпуса
Сверление на короткой / длинной стороне корпуса
Минимальное расстояние для сверления между сквозными и резьбовыми отверстиями для корпусов серии УНВ-ДГ-Н(В)
Смотровые окна
На заказ возможно изготовить корпуса с окнами в соответствии с допустимыми размерами для различных типов корпусов и различных вариантов использования, таких как инструменты визуализации, клавиатура типа «Touch screen», сенсорный экран.

Символы для окон:
48х48 мм … 200х48 мм — «Уменьшенное окно»;
60х60 мм … 300х150 мм — «Стандартное окно»;
300х300 мм … 450х300 мм — «Стандартное окно с фланцем фиксации».
Возможны другие варианты, но в пределах максимально допустимых размеров для корпуса, см. таблицу ниже.
Имеется возможность изготовления смотровых окон произвольного типоразмера по индивидуальному заказу

Эти корпуса в основном используются для соединения кабелей или перехода с одного сечения проводников на другое посредством клеммных зажимов, для наращивания кабелей, а также для соединения силовых кабелей с проводниками вводной коробки электродвигателя.

Клеммные коробки серии УНВ-ДГ-Н(В)-К
Возможны различные конфигурации внутреннего расположения клеммных колодок. Расположение клеммных колодок может отличаться от стандартного на основании спецификации заказчика, но всегда в пределах действия сертификата соответствия.

Размер корпуса определяется Tехническим отделом компании ООО «Ди групп» на основании ряда параметров, указанных заказчиком:
  • количество и размеры кабелей;
  • количество и размеры входов;
  • требования по проводке и расположению корпусов в оборудовании.

Если корпус поставляется в комплекте с кабельными вводами или уплотнительными фитингами, мы отвечаем за определение их размеров, исходя из количества и размеров установленных кабелей. Также возможно дополнительное увеличение размера корпуса с учетом планируемых в будущем расширений.

Клеммные терминалы устанавливаются на монтажную рейку и фиксируются непосредственно к корпусу или на монтажную панель.
Примеры расположения клеммных колодок
Возможны различные конфигурации расположения клеммных зажимов внутри корпуса:
  • прямая;
  • диагональная;
  • в несколько рядов;
  • в несколько рядов и на разных уровнях.

Возможно иное расположение клеммных колодок (зажимов) по спецификации заказчика и в соответствии с областью действия сертификата, в зависимости от максимального количества клеммных колодок, отверстий на одной стороне, наименьшего применимого расстояния и рассеянной мощности для данного типа корпуса.
Примеры расположения клеммных колодок
Количество клеммных зажимов в соответствии с типом корпуса
Форма заказа клеммных коробок на базе корпусов УНВ(*)-ДГ-К
Внимание: заказать нужные вам изделия на базе коробок УНВ-ДГ (Х), УНВ-ДГ-(Х) или УНВ-ДГ-Х (Х) можно, скачав Опросные листы

Взрывозащищенные щиты освещения УНВ-ДГ-Н (В)-ЩО из нержавеющей стали предназначены для распределения переменного тока напряжением до 380 В, частотой 50 Гц, 60Гц и постоянного тока напряжением до 230 В в стационарных осветительных сетях и их защиты во взрывоопасных зонах предприятий химической, нефтеперерабатывающей, газовой и других отраслей промышленности в зонах с потенциально взрывоопасной атмосферой.

Щиты для систем освещения УНВ-ДГ-Н(В)-ЩО
Данный щит освещения во взрывонепроницаемой оболочке может применяться во взрывоопасных зонах.

Щиты освещения типа УНВ-ДГ-Н(В)-ЩО из нержавеющей стали так же могут работать совместно с управляющим фотореле. Фотореле посылает команду на замыкание или размыкание цепи при достижении установленного порога освещенности, определенного фотоэлементом.

Для прямого ввода кабелей или проводов в Ex d оболочку щита освещения применяются специально разработанные Ex d вводы для прямого ввода. Согласно обязательным требованиям характеристика изделия отражена в сертификате. Это позволяет отказаться от вводной коммутационной коробки, что делает нашу продукцию уникальной и более выгодной по сравнению с другими компаниями.

Взрывозащищенные щиты управления УНВ-ДГ-Н (В)-ЩУ из нержавеющей стали — комплексное устройство для контроля и управления технологическими процессами на промышленном предприятии.

Щиты для систем управления и сигнализации УНВ-ДГ-Н(В)-ЩУ
Данные изделия согласно сертификату комплектуются по индивидуальному заказу необходимыми для установки электротехническими компонентами (автоматические выключатели, УЗО, реле, таймеры, контакторы, трансформаторы, магнитные пускатели, плавкие предохранители, расцепители, шины, клеммники, аккумуляторные батареи, барьеры искрозащиты и т. д.), и IT-компонентами (процессоры, контроллеры, устройства аналогового и цифрового ввода и вывода, коммутаторы, WiFi и т. д.).
Щиты для систем управления и сигнализации УНВ-ДГ-Н(В)-ЩУ
В крышке шкафа могут быть установлены смотровые окна из термостойкого ударопрочного боросиликатного стекла, элементы управления и индикации, негорючие теплоизоляционные материалы, нагревательные элементы.

Имеется возможность размещения любой контрольно-измерительной цифровой или аналоговой аппаратуры (мониторы, вольтметры, амперметры и т.д.) — критерием совместимости является только габаритные размеры самого прибора.
Щиты для систем управления и сигнализации УНВ-ДГ-Н(В)-ЩУ
Взрывозащищенные шкафы управления отвечают всем нормам, требованиям и правилам, предъявляемым к электрооборудованию в химической, нефтеперерабатывающей, горнодобывающей промышленности, а также в других отраслях, где присутствует взрывоопасная атмосфера. Кроме того, структура и специальные свойства щитов управления УНВ-ДГ-Н(В)-ЩУ из нержавеющей стали позволяют эксплуатировать изделия в открытом море и экстремальных климатических условиях (тропики, субтропики, арктическая зона).

Взрывозащищенные пускатели магнитные УНВ-ДГ-Н (В)-ПМ из нержавеющей стали предназначены для местного и/или дистанционного управления электродвигателем в сетях переменного тока электроустановок химической, газовой, нефтяной и других отраслей промышленности, в зонах с потенциально взрывоопасной атмосферой.

Пускатели магнитные УНВ-ДГ-Н(В)-ПМ
Для прямого ввода кабелей или проводов в Ex d оболочку пускателя применяются специально разработанные Ex d вводы для прямого ввода. Согласно обязательным требованиям характеристика изделия отражена в сертификате. Это позволяет отказаться от вводной коммутационной коробки, что делает нашу продукцию уникальной по сравнению с другими компаниями.
Для заказа оборудования свяжитесь с нами